Produktuak
Biko engranaje ate-balbula
  • Biko engranaje ate-balbulaBiko engranaje ate-balbula

Biko engranaje ate-balbula

JQF Valve txinatar balbula fabrikatzailea eta hornitzailea da. Gure kalitate handiko engranaje alkako balbulak irekitzeko eta ixteko engranaje alaka (bobina engranaje) transmisio mekanismoa erabiltzen duen eskuzko ate balbula mota bat da. Engranaje-transmisio honek lana aurrezteko eta momentua handitzeko efektuak lortzen ditu, eta bereziki egokiak dira atearen kontrol zehatz eta egonkorra lortzeko diametro handiko eta presio handiko baldintzetan. Gure engranaje alaketako ate balbulek prezio abantaila handiak eskaintzen dituzte.

As the professional manufacturer of durable bevel gear gate valve, JQF Valve can also design and manufacture non-standard valve products according to customer requirements, providing you with networked, information-based, and intelligent industrial valves.

Produktuen erabilera

Z540H, Z540Y, Z540W motako PN16 ~ PN160 altzairuzko engranaje alaka bultzatutako ziri ate balbula Lianggu valve Co., Ltd.-ek ekoitzitako engranaje alaka, brida konexioa, ziri motako ate elastikoa. Eserlekua zigilatzeko gainazaleko materiala gainazaleko soldadura-aleazioa da (Z540H-16C ~ 160, Z540Y-16C ~ 160, Z540Y-16I ~ 160I, Z540Y-16P ~ 160P, Z540Y-16R ~ 160R ~ 160R, 60W altzairu herdoilgaitza (Z54P) Z540W-16R ~ 160R), presio nominala PN16 ~ PN160. Balbula gorputzaren materiala karbono altzairua da (Z540H-16C ~ 160, Z540Y-16C ~ 160), kromo molibdeno aleazio altzairua (Z540Y-16I ~ 160I), altzairu herdoilgaitza (Z540W-16P ~ 160P, Z540Y-16P ~ 160P, Z540Y-16P ~ 160P, Z540Y-16P ~ 160I). 160R, Z540Y- 16R ~ 160R) ate-balbula.

Produktuaren abantailak:

1. Pertsonalizatutako Bevel engranaje ate balbulek estandar aurreratuak, zigilatzea fidagarria, errendimendu handiagoa eta itxura erakargarria dituzte.
2. Ziri-formako balbula-plaken egitura aldatze malgurako.
3. Balbula plaka eta eserlekua Stellite aleaziotik soldatzen dira.
4. Balbula zurtoinak itzaltzeko eta tenplatzeko tratamendua jasaten du, korrosioa eta higadura erresistentzia hobetzeko.
5. Hainbat hodi-brida estandarrak eta brida zigilatzeko gainazal motak eskuragarri daude.
6. Kalitate handiko Bevel engranaje ate balbulak gorputzeko hainbat materialetan daude eskuragarri presio, tenperatura eta medio-baldintza desberdinetara egokitzeko.

Errendimendu-parametroak

eredua PN Lan-presioa/MPa Funtzionamendu-tenperatura/℃ Euskarri egokiak
Z540H-16C-160 16-160 1,6-16,0 ≤425 Ura, lurruna, olioa
Z540Y-16C-160 16-160 1,6-16,0 ≤425 Ura, lurruna, olioa
Z540H-16I-160 16-160 1,6-16,0 ≤550 Lurruna, olioa
Z540W-16P-40P 16-40 1,6-4,0 ≤150 Komunikabide korrosiboak
Z540Y-16P-160P 16-160 1,6-16,0 ≤150 Komunikabide korrosiboak
Z540W-16R-40R 16-40 1,6-4,0 ≤150 Komunikabide korrosiboak
Z540Y-16R-160R 16-160 1,6-16,0 ≤150 Komunikabide korrosiboak

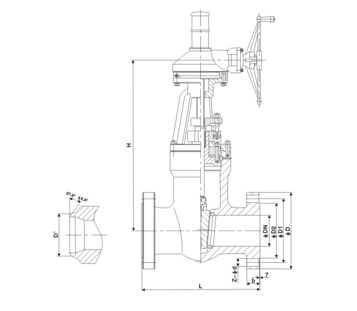
Forma nagusia eta konexio dimentsioak

Diametro nominala Dimentsio nagusiak eta konexio dimentsioak
L D D1 D2 b Z-d H
Z540H-16C
200 400 335 295 265 26-3 12-Φ23 730
250 450 405 355 320 30-3 12-Φ25 897
300 500 460 410 375 30-3 12-Φ25 1032
350 550 520 470 435 34-4 16-Φ25 1170
400 600 580 525 485 36-4 16-Φ30 1330
450 650 640 585 545 40-4 20-Φ30 1541
500 700 705 650 608 44-4 20-Φ34 1676
600 800 840 770 718 48-5 20-Φ36 1874
700 900 910 840 788 50-5 24-Φ36 2083
800 1000 1020 950 898 52-5 24-Φ41 2400
Z540H-25
200 400 360 310 278 34-3 12-Φ25 730
250 450 425 370 332 36-3 12-Φ30 897
300 500 485 430 390 40-4 16-Φ30 1032
350 550 550 490 448 44-4 16-Φ34 1170
400 600 610 550 505 48-4 16-Φ34 1330
450 650 660 600 555 50-4 20-Φ34 1541
500 700 730 660 610 52-4 20-Φ36 1676
600 800 840 770 718 56-5 20-Φ41 1874
700 900 955 875 815 60-5 24-Φ42 2083
800 1000 1070 990 930 64-5 24-Φ48 2400









Egituraren irudia

Hot Tags: Bevel Gear Gate Balbula, Txina, pertsonalizatua, kalitatea, iraunkorra, aurreratua, fabrikatzailea, hornitzailea, fabrika, stockean
Bidali kontsulta
Harremanetarako informazioa
  • Helbidea

    No.1, North 1st Road, Stainless Steel New Town, Lecong Steel World West Road, Shunde Barrutia, Foshan hiria, Guangdong probintzia, Txina

  • Posta elektronikoa

    jinqiufamen@gmail.com

Ate-balbulei, globo-balbulei eta kontrol-balbulei edo prezioen zerrendari buruzko kontsultak egiteko, utzi zure posta elektronikoa eta 24 orduko epean jarriko gara harremanetan.

X
Cookieak erabiltzen ditugu nabigazio esperientzia hobea eskaintzeko, guneko trafikoa aztertzeko eta edukia pertsonalizatzeko. Gune hau erabiltzean, gure cookieen erabilera onartzen duzu. Pribatutasun politika
Baztertu Onartu